Beauchamp Road, Twickenham, TW1

  • Address

    Beauchamp Road, Twickenham, TW1

  • Price

    £775000 (Guide Price)

  • Property

    Endterrace House

  • Details

    2 Bedrooms, 1 Reception, 1 Bathroom

  • Tenure

    Freehold

Share

Information

Incredible opportunity to put your own stamp on this two bedroom end of terrace cottage moments from Twickenham Station.

Tucked away, moments from Twickenham High Street, is the rare opportunity to purchase this end of terrace cottage.

Offering an opportunity to modernise and put your own stamp on, this two bedroom home offers additional benefits such as garage and off-street parking.

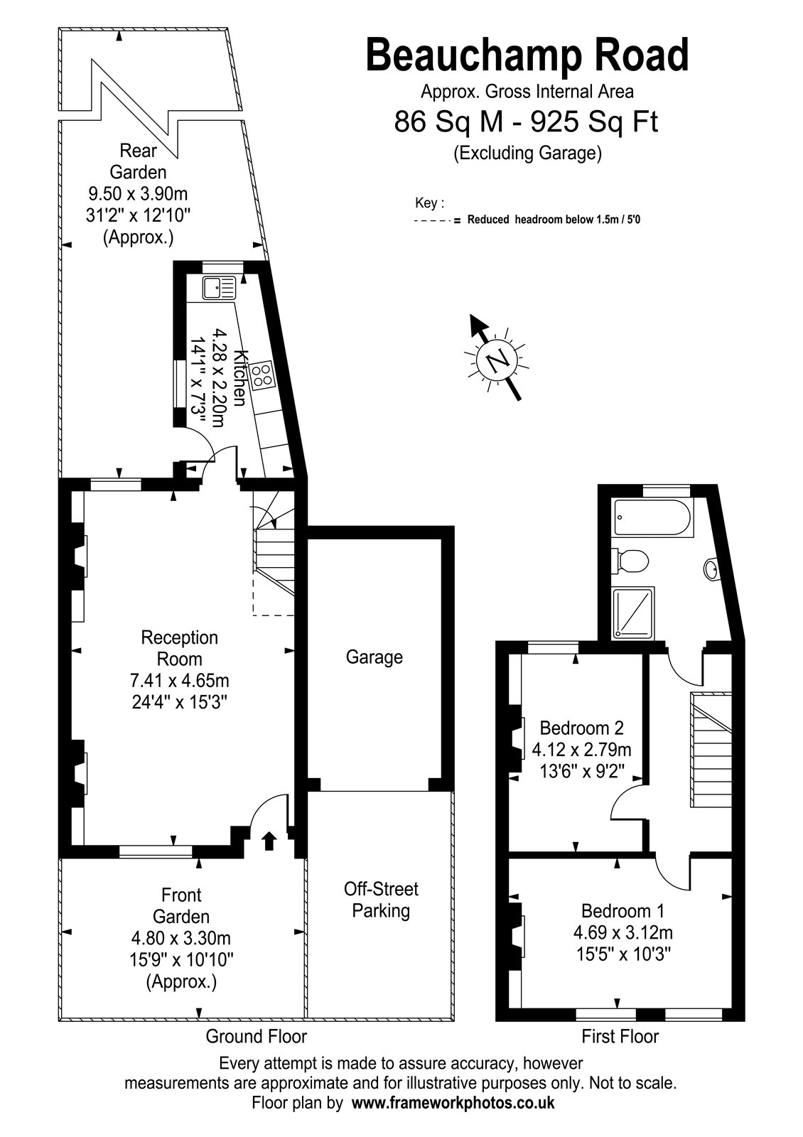
Inside you are welcomed by a wide and spacious reception room leading to kitchen overlooking the rear garden. Upstairs, two double bedrooms and unusually large bathroom.

Planning permission has been given to extend to the rear including downstairs WC and utility room as well as side return kitchen extension at the rear – drawings available.

Beauchamp Road is situated minutes from Twickenham Station as well as local schools such as St Mary’s Primary School, Orleans Park School and Orleans Primary. Local parks include Marble Hill and Moor Mead Park and St Margarets is a short walk away.

Highlights

Two bedroom cottage
In need of modernisation
Potential to extend STPP
Off Street parking
Garage included

Local Authority: Richmond Upon Thames
Council Tax Band: E
EPC: D

Floorplan

Map

Beauchamp Road, Twickenham, TW1 3JD

Arrange a viewing

    Legal

    As the agent of the vendor or landlord we are not surveyors or conveyancing experts, as such we cannot & do not comment on the condition of the property or issues relating to title or other such issues that may affect this property, unless we have been made aware of such matters. Interested parties should employ their own professionals to make such enquiries before making transactional decisions. Every care has been taken with the preparation of these particulars, but they are for general guidance only and complete accuracy cannot be guaranteed. If there is any point, which is of particular importance please ask or professional verification should be sought. All dimensions are approximate. The mention of any fixtures, fittings &/or appliances does not imply they are in full efficient working order. Photographs are provided for general information and it cannot be inferred that any item shown is included in the sale. These particulars do not constitute a contract or part of a contract.