Cambridge Park, Twickenham, TW1

  • Address

    Cambridge Park, Twickenham, TW1

  • Price

    £800000 (Guide Price)

  • Property

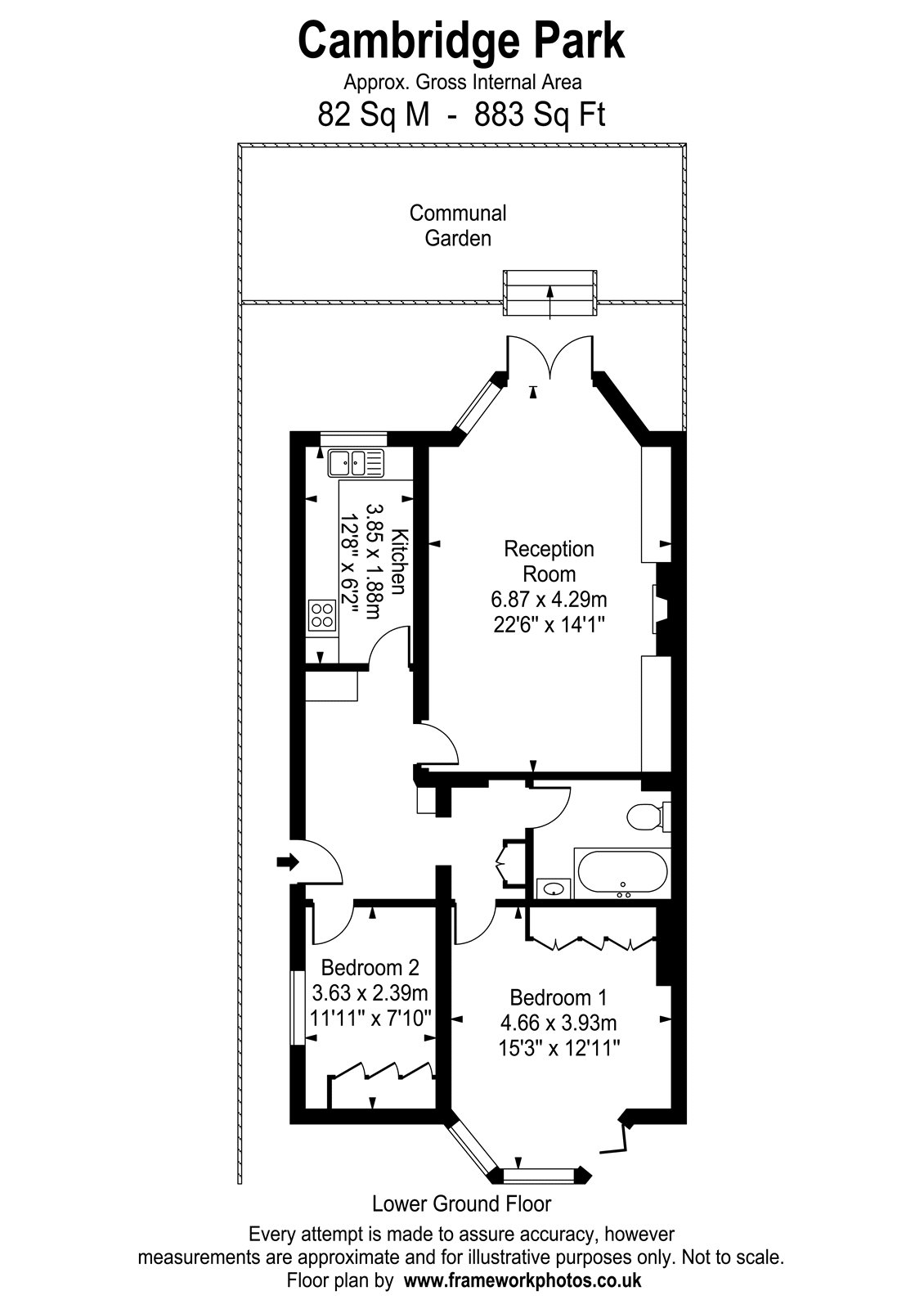
    Ground Floor Apartment

  • Details

    2 Bedrooms, 1 Reception, 1 Bathroom

  • Tenure

    Leasehold

    Ground rent (per annum): £1

    Service charge (per annum): £3000

    Remaining length of lease (years): 957

Share

Information

Charming 2-bed apartment with own entrance, direct access to shared garden and spacious reception.

Nestled in Cambridge Park, a quiet and much sought-after location, this period garden level apartment, recently decorated, offers a unique opportunity to live on one of the most coveted streets in East Twickenham. Properties like this do not come on to the market often.

This unique property boasts two spacious bedrooms, and an open plan living dining room. The apartment benefits from a private and secluded patio which is accessed via French doors from the living room. The bright kitchen is fully fitted and there is a lovely bathroom with shower over bath. The apartment also has its own private entrance and has direct access to beautiful communal gardens.

The area has very good transport links with Richmond town centre and the coffee shops and restaurants of St Margarets village are a few minutes’ walk away.

Residents will benefit from resident street parking and is offered with no chain, making it an ideal option for both first-time buyers and investors alike.

Cambridge Park is a quiet and sought-after location and lies within just a few hundred metres of both Marble Hill Park and an excellent selection of local shops in East Twickenham.

Within a few minutes walk is the historic Richmond Bridge with Richmond town centre and its mainline station offering swift access into central London just a little further beyond.

Highlights

Lower ground floor flat
Two bedrooms
Large reception space
Private Patio
Communal Garden
Own entrance
Chain free

Local Authority: Richmond Upon Thames
Council Tax Band: E
EPC: D

Floorplan

Map

Cambridge Park, Twickenham, TW1 2PF

Arrange a viewing

    Legal

    As the agent of the vendor or landlord we are not surveyors or conveyancing experts, as such we cannot & do not comment on the condition of the property or issues relating to title or other such issues that may affect this property, unless we have been made aware of such matters. Interested parties should employ their own professionals to make such enquiries before making transactional decisions. Every care has been taken with the preparation of these particulars, but they are for general guidance only and complete accuracy cannot be guaranteed. If there is any point, which is of particular importance please ask or professional verification should be sought. All dimensions are approximate. The mention of any fixtures, fittings &/or appliances does not imply they are in full efficient working order. Photographs are provided for general information and it cannot be inferred that any item shown is included in the sale. These particulars do not constitute a contract or part of a contract.