Grosvenor Road, Twickenham, TW1

  • Address

    Grosvenor Road, Twickenham, TW1

  • Price

    £500000 (Guide Price)

  • Property

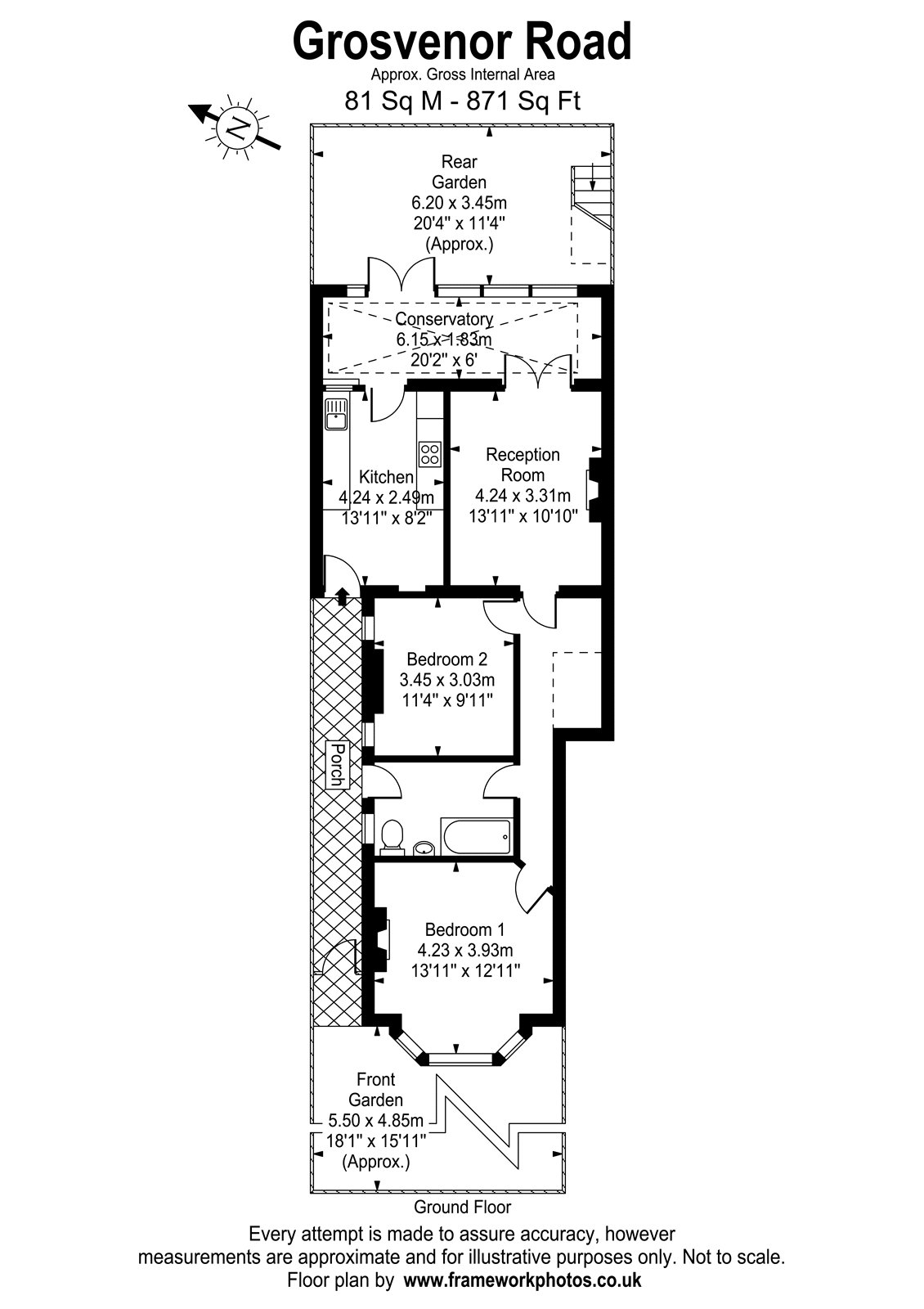
    Ground Floor Apartment

  • Details

    2 Bedrooms, 1 Reception, 1 Bathroom

  • Tenure

    Leasehold

    Service charge (per annum): £400

Share

Information

REFURBISHMENT OPPORTUNITY!
This ground floor flat situated ideally for Twickenham High Street and Station has huge potential. With two double bedrooms, own entrance and chain free.

A two bedroom ground floor flat with opportunity to modernise.
In a fantastic location for Twickenham station with direct fast trains to Waterloo and Twickenham high street with an array of shops and restaurants including the popular Church Street.

With two double bedrooms, large reception room. separate kitchen and rear garden room, this flat could we rearranged and modernised into a wonderful garden flat. Outside the garden is private and secluded with lots of greenery.

Grosvenor Road is ideal for families with brilliant local schools and nurseries within walking distance.

The property will be sold with a new 150 year lease and low service charge with peppercorn ground rent.

Highlights

Refurbishment required
No chain
Vacant possession
Garden
Twickenham location

Local Authority: Richmond Upon Thames
Council Tax Band: D
EPC: D

Floorplan

Map

Grosvenor Road, Twickenham, TW1 4AE

Arrange a viewing

    Legal

    As the agent of the vendor or landlord we are not surveyors or conveyancing experts, as such we cannot & do not comment on the condition of the property or issues relating to title or other such issues that may affect this property, unless we have been made aware of such matters. Interested parties should employ their own professionals to make such enquiries before making transactional decisions. Every care has been taken with the preparation of these particulars, but they are for general guidance only and complete accuracy cannot be guaranteed. If there is any point, which is of particular importance please ask or professional verification should be sought. All dimensions are approximate. The mention of any fixtures, fittings &/or appliances does not imply they are in full efficient working order. Photographs are provided for general information and it cannot be inferred that any item shown is included in the sale. These particulars do not constitute a contract or part of a contract.