Information
Double fronted Victorian semi-detached house situated just off Kew Green within this much admired conservation area.
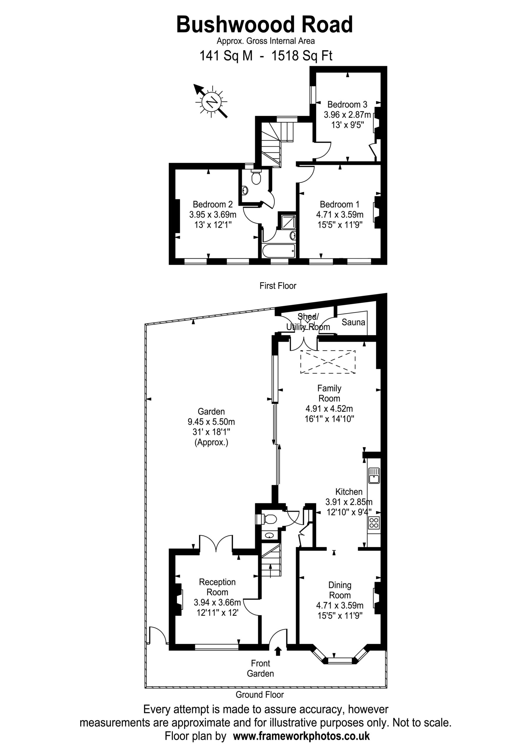
Wonderfully refurbished and presented to an exemplary standard, the property affords beautifully proportioned family accommodation over two floors. An abundance of character detail has been restored/re-instated combining successfully with a architecturally striking interior design. Adorned with an abundance of natural light, the property features a magnificent 27′ (approx) kitchen/family room and living room with full length sliding glazed doors opening onto the garden and access leading to a bespoke sauna and utility storage area, individual music and dining rooms either side of the hallway, 3 first floor double bedrooms, family bathroom and separate wc. Outside to the rear there is a delightful walled rear garden with side pedestrian access. Located moments from the River Thames tow path, and the array of pubs and restaurants around the green and within easy reach of Kew Gardens underground station, Kew Bridge mainline station and the Elizabeth Gate entrance to the Royal Botanic Gardens.
Highlights
3 Bedrooms
3 Reception rooms
1 Bathroom
Utility room & sauna
Striking interior design
Double fronted Victorian house adjoining Kew Green
Adorned with character and natural light
Moments from the River tow path
Local Authority: Richmond Upon Thames
Council Tax Band: F
EPC: E
Floorplan

Map

Arrange a viewing
Legal
As the agent of the vendor or landlord we are not surveyors or conveyancing experts, as such we cannot & do not comment on the condition of the property or issues relating to title or other such issues that may affect this property, unless we have been made aware of such matters. Interested parties should employ their own professionals to make such enquiries before making transactional decisions. Every care has been taken with the preparation of these particulars, but they are for general guidance only and complete accuracy cannot be guaranteed. If there is any point, which is of particular importance please ask or professional verification should be sought. All dimensions are approximate. The mention of any fixtures, fittings &/or appliances does not imply they are in full efficient working order. Photographs are provided for general information and it cannot be inferred that any item shown is included in the sale. These particulars do not constitute a contract or part of a contract.