Information
A well presented one bedroom Victorian conversion flat, located in a popular road close to Twickenham Green.
Camac Road is close to Twickenham Green and within walking distance of Twickenham high street, 1km. There are also great transport links, including Twickenham and Strawberry Hill train stations, with the fast train service to London Waterloo, and regular bus services towards Twickenham and Richmond.
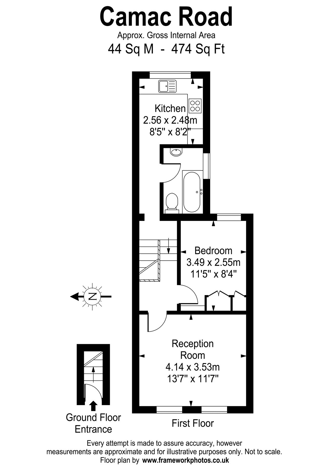
The accommodation of this first floor flat comprises, a spacious reception room, bedroom, bathroom, and a separate kitchen.
Highlights
Twickenham Green Location
Beautifully Presented
One Bedroom
Popular Road
Unfurnished
Local Authority: Richmond Upon Thames
Council Tax Band: C
EPC: C
Rental Deposit
Deposit payable: 5 weeks
Floorplan

Map

Arrange a viewing
Legal
As the agent of the vendor or landlord we are not surveyors or conveyancing experts, as such we cannot & do not comment on the condition of the property or issues relating to title or other such issues that may affect this property, unless we have been made aware of such matters. Interested parties should employ their own professionals to make such enquiries before making transactional decisions. Every care has been taken with the preparation of these particulars, but they are for general guidance only and complete accuracy cannot be guaranteed. If there is any point, which is of particular importance please ask or professional verification should be sought. All dimensions are approximate. The mention of any fixtures, fittings &/or appliances does not imply they are in full efficient working order. Photographs are provided for general information and it cannot be inferred that any item shown is included in the sale. These particulars do not constitute a contract or part of a contract.