Mortlake High Street, Mortlake, SW14

  • Address

    Mortlake High Street, Mortlake, SW14

  • Price

    £450000

  • Property

    Ground Floor Apartment

  • Details

    3 Bedrooms, 1 Reception, 1 Bathroom

  • Tenure

    Leasehold

Share

Information

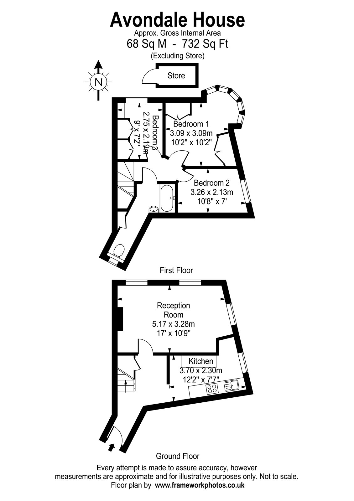
A rarely available three-bedroom split-level maisonette with character turret, own private front door and bike storage unit. Requiring updating and offered with no chain.

This impressive three-bedroom split-level maisonette is ideally situated facing the greenery of Jubilee Park with the River Thames beyond, within easy reach of the shops, bars and restaurants of White Hart Lane, with the delights of Barnes village also accessible.

Barnes Bridge and Mortlake stations are both within approximately 0.5 mile, providing regular access to London Waterloo via Vauxhall and Clapham Junction.

With the benefit of its own front door, this maisonette is positioned on the corner of a purpose-built block, and has light and bright accommodation arranged over two floors.

A hallway, double-aspect living/dining room and kitchen are on the ground floor, with two double bedrooms, a further single and bathroom on the first floor. There are ample wardrobes and wide ranging views from the principal bedroom, making the most of the turret which also adds a touch of character.

The property also has a separate storage cupboard located to the rear of the property, providing useful, secure storage for bikes. There is also a communal drying area for clothes to the rear of the property.

There are excellent primary schools within easy walking distance, including Thomson House School and St Mary Magdalene’s.

Highlights

hot water and heating included in the service charge
3 bedrooms
storage unit
own front door
slight river views


Council Tax Band: EPC: D

Floorplan

Map

Mortlake High Street, Mortlake, SW14 8SQ

Arrange a viewing

    Legal

    As the agent of the vendor or landlord we are not surveyors or conveyancing experts, as such we cannot & do not comment on the condition of the property or issues relating to title or other such issues that may affect this property, unless we have been made aware of such matters. Interested parties should employ their own professionals to make such enquiries before making transactional decisions. Every care has been taken with the preparation of these particulars, but they are for general guidance only and complete accuracy cannot be guaranteed. If there is any point, which is of particular importance please ask or professional verification should be sought. All dimensions are approximate. The mention of any fixtures, fittings &/or appliances does not imply they are in full efficient working order. Photographs are provided for general information and it cannot be inferred that any item shown is included in the sale. These particulars do not constitute a contract or part of a contract.