Information
An elegant and beautifully extended four bedroom end-of-terrace family home, perfectly blending period charm with contemporary design.
Expertly designed to offer exceptional family living, this stunning property boasts generous proportions, high-specification finishes.
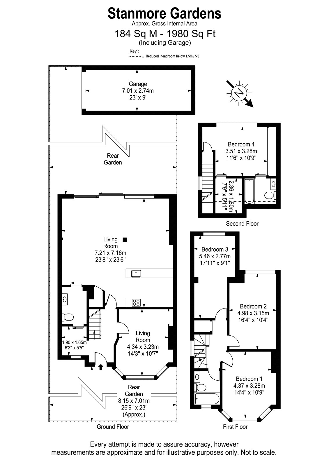
The ground floor features a striking open-plan kitchen/dining/family space, enhanced by stylish exposed brickwork and industrial style beams. This versatile area is perfect for entertaining and everyday living, with bi-folding doors opening onto the sunny facing rear garden. Additional ground floor highlights include a practical utility room, guest WC, and a bright, inviting reception room with wooden flooring.
Upstairs, the first floor hosts three well-proportioned bedrooms along with a contemporary family bathroom. The top floor is dedicated to an impressive principal suite, flooded with natural light through full-height windows. This serene space includes generous built-in storage, a luxurious en-suite bathroom, and an additional room ideal for a nursery, dressing room, or home office.
At the rear of the property, you’ll find a landscaped garden and a private garage or versatile storage space, with convenient access from St Paul’s Road.
This lovely house is set in a highly regarded area renowned for its tree lined residential roads of attractive houses, close to charming restaurants and cafes on the Kew road and Richmond town centre and station and also the Old Deer park and famous Kew Gardens.
Richmond offers a wide and sophisticated range of shops restaurants and pubs, two cinemas and a renowned theatre set on the picturesque Green. The station has a fast and frequent mainline service to London Waterloo and also the District line tube and Overground serving North London.
The general area is known for its delightful green open spaces including the beautiful 2500 acres of Richmond Park and a picturesque stretch of the river Thames.
Please do contact the office should you wish to be sent a video tour of the house.
Highlights
4 Bedrooms
South/Westley facing Garden
End of terrace
Freehold
Garage
Chain Free
Extended
Local Authority: Richmond Upon Thames
Council Tax Band: F
EPC: C
Floorplan

Map

Arrange a viewing
Legal
As the agent of the vendor or landlord we are not surveyors or conveyancing experts, as such we cannot & do not comment on the condition of the property or issues relating to title or other such issues that may affect this property, unless we have been made aware of such matters. Interested parties should employ their own professionals to make such enquiries before making transactional decisions. Every care has been taken with the preparation of these particulars, but they are for general guidance only and complete accuracy cannot be guaranteed. If there is any point, which is of particular importance please ask or professional verification should be sought. All dimensions are approximate. The mention of any fixtures, fittings &/or appliances does not imply they are in full efficient working order. Photographs are provided for general information and it cannot be inferred that any item shown is included in the sale. These particulars do not constitute a contract or part of a contract.