Information
A most attractive, elegant and beautifully presented period house with off-street parking superbly located in the residential heart of Richmond, close to the town centre.
The property is favourably located towards the lower end of the desirable Richmond Hill area within a few hundred yards of the extensive facilities of the town centre as well as beautiful Terrace gardens, the river and the Green.
In addition to the abundance of shops, cafes, restaurants Richmond also offers two cinemas and a renowned theatre set on the picturesque Green and the magnificent 2500 green acres of the park is available at the crest of the Hill.
The station is also within walking distance and provides a fast and frequent mainline service to London Waterloo, the District line tube and Overground line serving North London.
There are also some outstanding schools nearby including the Vineyard primary school.
Highlights
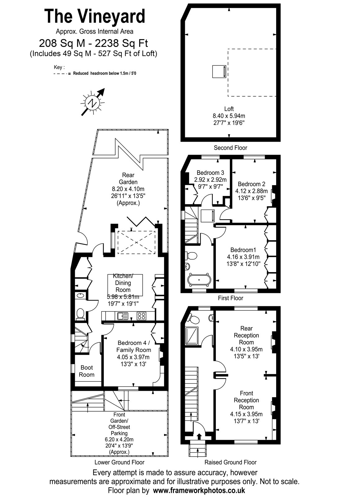
3-4 bedroom, 2 bathrooms
Beautifully presented
Elegant period house
Off-street parking
In the heart of lower Richmond Hill
Local Authority: Richmond Upon Thames
Council Tax Band: G
EPC: D
Floorplan

Map

Arrange a viewing
Legal
As the agent of the vendor or landlord we are not surveyors or conveyancing experts, as such we cannot & do not comment on the condition of the property or issues relating to title or other such issues that may affect this property, unless we have been made aware of such matters. Interested parties should employ their own professionals to make such enquiries before making transactional decisions. Every care has been taken with the preparation of these particulars, but they are for general guidance only and complete accuracy cannot be guaranteed. If there is any point, which is of particular importance please ask or professional verification should be sought. All dimensions are approximate. The mention of any fixtures, fittings &/or appliances does not imply they are in full efficient working order. Photographs are provided for general information and it cannot be inferred that any item shown is included in the sale. These particulars do not constitute a contract or part of a contract.