The Vineyard, Richmond, TW10

  • Address

    The Vineyard, Richmond, TW10

  • Price

    £8333pm

  • Property

    Endterrace House

  • Details

    4 Bedrooms, 2 Receptions, 2 Bathrooms

Share

Information

A most attractive, elegant and beautifully presented period house with off-street parking, superbly located in the heart of Richmond Hill, close to the town centre.

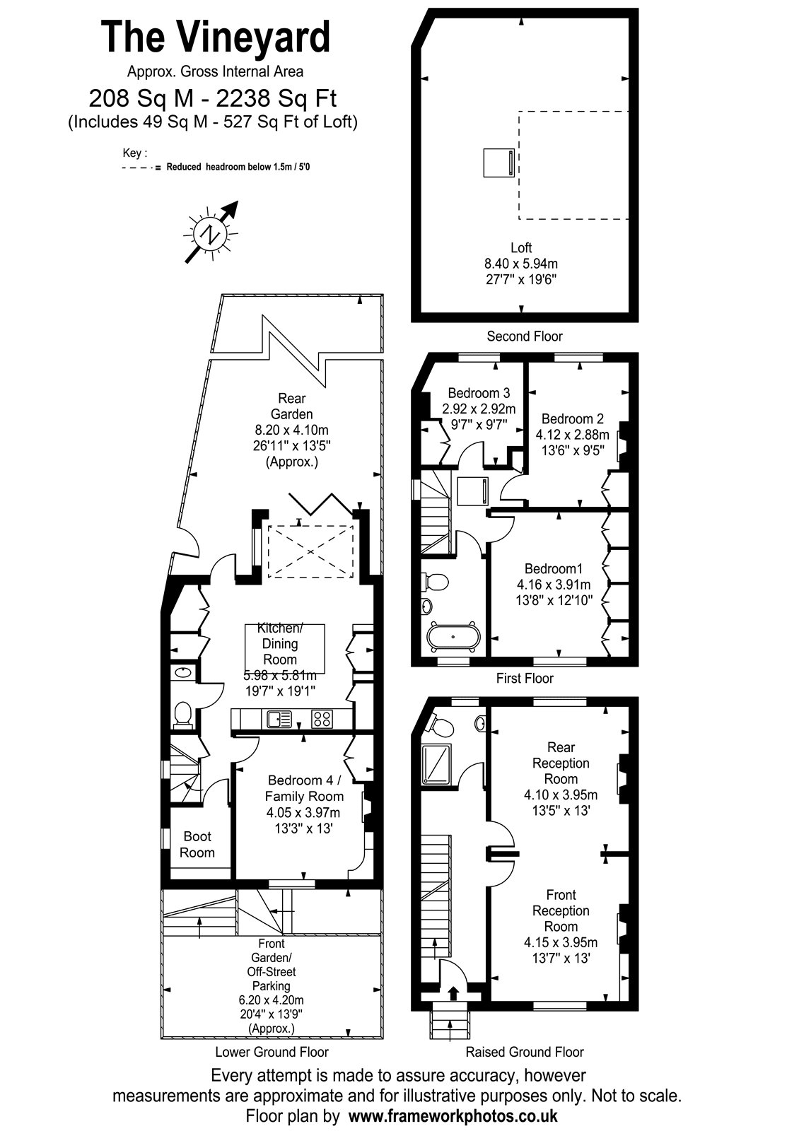
This stunning family home offers beautifully proportioned accommodation arranged over three floors, combining period charm with modern living.

The ground floor includes a boot room and a versatile family room/bedroom, together with a downstairs WC. To the rear, an open-plan kitchen and dining area opens directly onto an attractive, well-maintained garden.

The second floor features a bright, double-aspect reception room, flooding the space with natural light, along with a stylish shower room.

On the top floor, there are three double bedrooms and a contemporary family bathroom.

The property is favourably located towards the lower end of the desirable Richmond Hill area within a few hundred yards of the extensive facilities of the town centre as well as beautiful Terrace gardens, the river and the Green.
In addition to the abundance of shops, cafes, restaurants Richmond also offers two cinemas and a renowned theatre set on the picturesque Green and the magnificent 2500 green acres of the park is available at the crest of the Hill.
The station is also within walking distance and provides a fast and frequent mainline service to London Waterloo, the District line tube and Overground line serving North London.

There are also some outstanding schools nearby including the Vineyard primary school.

Highlights

Period property
Off street parking
On slopes of Richmond Hill

Local Authority: Richmond Upon Thames
Council Tax Band: G
EPC: D

Rental Deposit

Deposit payable: 5 weeks

Floorplan

Map

The Vineyard, Richmond, TW10 6AQ

Arrange a viewing

    Legal

    As the agent of the vendor or landlord we are not surveyors or conveyancing experts, as such we cannot & do not comment on the condition of the property or issues relating to title or other such issues that may affect this property, unless we have been made aware of such matters. Interested parties should employ their own professionals to make such enquiries before making transactional decisions. Every care has been taken with the preparation of these particulars, but they are for general guidance only and complete accuracy cannot be guaranteed. If there is any point, which is of particular importance please ask or professional verification should be sought. All dimensions are approximate. The mention of any fixtures, fittings &/or appliances does not imply they are in full efficient working order. Photographs are provided for general information and it cannot be inferred that any item shown is included in the sale. These particulars do not constitute a contract or part of a contract.