Information
A beautifully presented two bedroom first floor flat situated close to Twickenham town centre and great transport links.
This two bed property has been renovated to a high standard throughout, offering a spacious and contemporary living space, ideally located close to the heart of Twickenham town centre, with all its amenities, bars, and restaurants.
Transport links are excellent, with a fast overground train service to London Waterloo close by and plenty of regular bus services into Richmond.
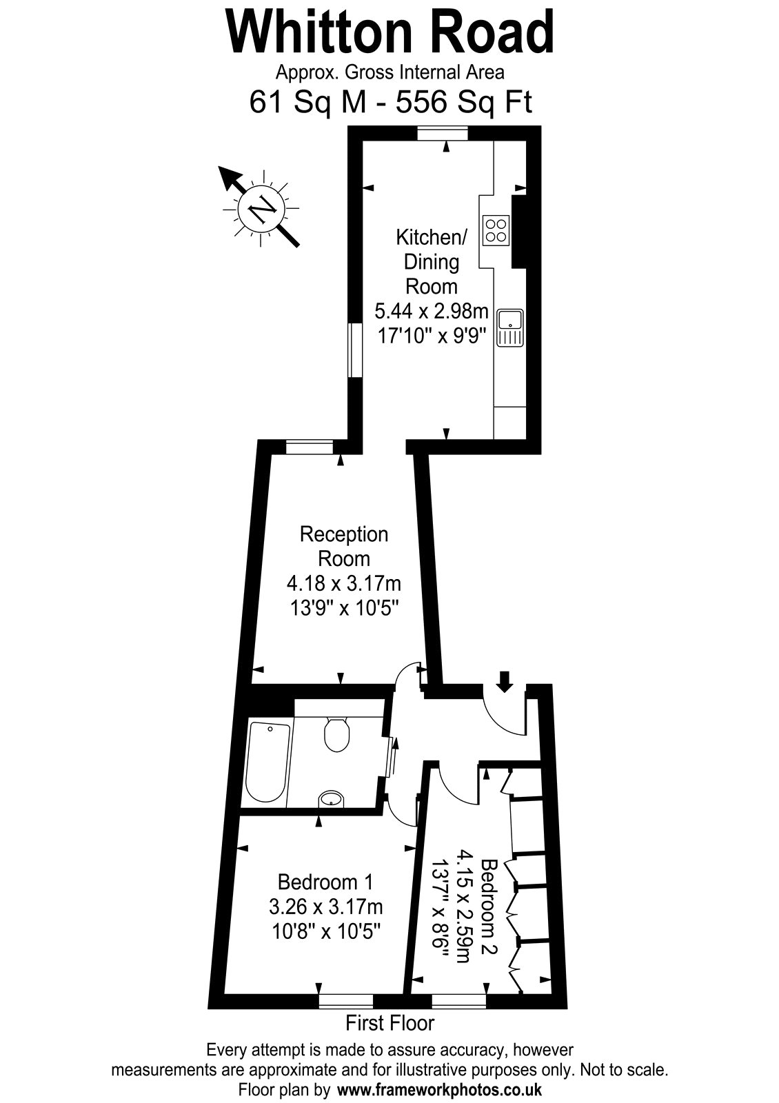
The accommodation comprises, two bedrooms, stylish bathroom, reception room and large kitchen/dining room with a fully fitted kitchen.
The property benefits from wood flooring in the reception rooms, storage and secure entry intercom.
Highlights
Two Bedrooms
Contemporary Styling
Unfurnished
Central Twickenham
Spacious Kitchen/Reception Room
Local Authority: Richmond Upon Thames
Council Tax Band: D
EPC: B
Rental Deposit
Deposit payable: 5 weeks
Floorplan

Map

Arrange a viewing
Legal
As the agent of the vendor or landlord we are not surveyors or conveyancing experts, as such we cannot & do not comment on the condition of the property or issues relating to title or other such issues that may affect this property, unless we have been made aware of such matters. Interested parties should employ their own professionals to make such enquiries before making transactional decisions. Every care has been taken with the preparation of these particulars, but they are for general guidance only and complete accuracy cannot be guaranteed. If there is any point, which is of particular importance please ask or professional verification should be sought. All dimensions are approximate. The mention of any fixtures, fittings &/or appliances does not imply they are in full efficient working order. Photographs are provided for general information and it cannot be inferred that any item shown is included in the sale. These particulars do not constitute a contract or part of a contract.